Homes Designed
for Air That Truly Breathes.
上質な空気が巡る、
次世代住宅
Design デザイン
Outline 物件概要
| 物件名 | AIRISTA_N / エアリスタ沼袋 |
|---|---|
| 所在地 | 中野区沼袋4丁目(販売区画5区画) |
| 交通機関 | 西武新宿線「沼袋」駅徒歩8分 |
| 土地面積 | 95.69㎡〜127.47㎡(28.94坪〜38.55坪) |
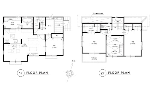
| 建物プラン |
91.49㎡〜102.67㎡ 4LDK
※間取りのご要望等、お気軽にご相談下さい。 |
| 販売価格 | 借地権価格:4450万円~5780万円(@147万円/坪~) 建物予定価格:2300万円~2400万円(税込) 販売予定価格:6850万円~8140万円(税込) |
| 販売形態 | 建築条件付売借地権5区画(旧法借地 / Air断』換気システム導入) |
| 売主 | 株式会社イデアルコンサルティング 東京都渋谷区渋谷2-11-8 大菅ビルディング8階 電話:03-5778-2611 FAX:03-5778-2614 お問い合わせはこちらから。 |
| 宅建免許 | 東京都知事(5)82914号 |
| 所属団体 | 公益社団法人 全国宅地建物取引業保証協会 公益社団法人 東京都宅地建物取引業協会 |
